Barcelona Youth hostel

International competition entry for a youth hostel in Barcelona.

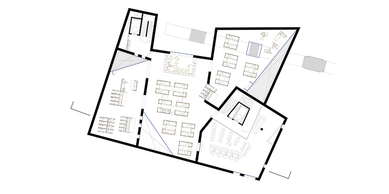
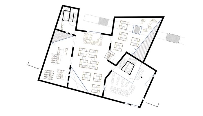
The location of the project is a peripheral area located in the Collserola hills in Barcelona called “Torre Baró” (The Baron’s Tower) and very close to an aqueduct from the 18th century. The area is currently underdeveloped and needs a regeneration. The reinterpretation of a tower as a new identity for the area has been the starting point of the concept. The exterior view of the building shows a tall concrete volume with a sloped roof.  The building consists of three volumes connected by lower one.The result is an elevated open place as a unifying element for the building.  
A brick pillar of the old aqueduct has been carefully integrated in the project and serves to separate one of the dormitories from a relax zone . Dormitories are organized in wide spaces and distributed over two stories. They are divided by wooden cubicles which contain beds and storage areas.
The patio can be used as an extension of the multi-functional space which is located in the tower.  Cultural events and leisure activities can be held indoors as well as outdoors. The tallest building contains the reception and lobby, a multifunctional area and a lounge zone on the top floor.

Author: Stefan Juhasz, Alberto Collet, Jordi Gorbe
Site Roses, Spain
Date: 2013.10
Client: Barcelona City