Alvar Aalto Museum Extension

International competition entry for the extension of the Alvar Aalto Museum in Jyväskylä.

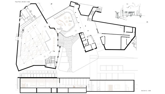
The proposal for the extension consists in the connection between the two existing museum buildings. Inspired by the organic forms of Alvar Aalto the goal was to create a building which is capable to respond to the irregular shapes of both existing museums. The spatial definition with lines and curves creates a continuous envelope in order to mimic the organic forms of Alvar Aalto. The two existing buildings and the extension should not be regarded as a large complex but instead an ensemble of figures, where the architecture of Alvar Aalto is maintained, making the new extension clearly visible as a new link.
A large curved ramp connects the two floors of each museum. It allows the visitors to gradually discover the space and it also makes it accessible to visitors in wheelchairs. A flight of stairs located near the entrance gives a more direct access to the mezzanine level where the main area of the extension is located.  The perimeter is marked by wooden columns with a steel core which support the roof. This area contains the museum shop and the reception. It  serves as a lobby for the visitors as well as for temporary exhibitions or for supporting acts like talks or workshops. The outside walls of the connecting building  are made of glass and wood frames. These elements are a continuation of the vertical pattern of baton-shaped, glazed tiles of the Alvar Aalto Museum and provide a dialogue with the vertical rhythm of the different elements used on the adjacent façades as the glazed tiles and skylights frames.

Author: Alberto Collet, Stefan Juhasz
Type: International Competition
Site: Jyväskylä, Finland
Date: 2015.10
Client: Alvar Aalto Foundation and the City of Jyväskylä